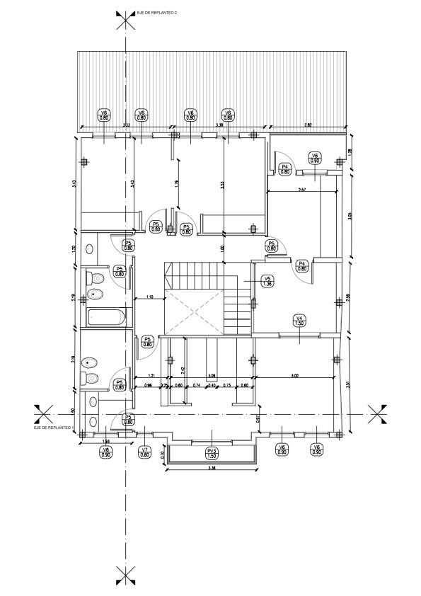
Vivienda Unifamiliar Obra Nueva Año 2018 Proyecto y Dirección de Obra Vicente López, Buenos Aires, Argentina