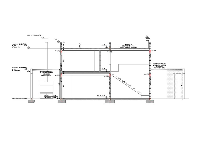
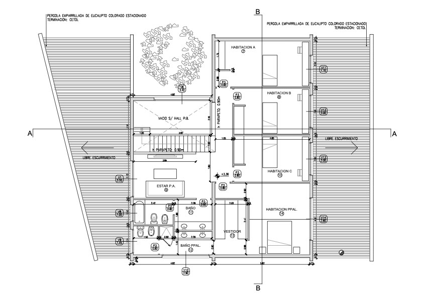
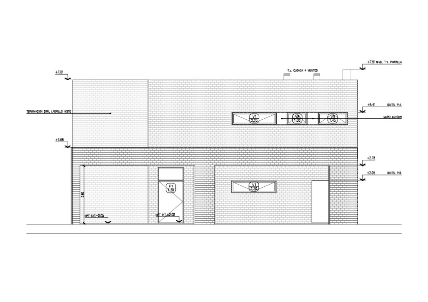
CASA PW132
Vivienda Unifamiliar Obra Nueva Año 2017 Proyecto y Dirección de Obra Barrio Los Naranjos, Canning, Buenos Aires, Argentina
Vivienda Unifamiliar Obra Nueva Año 2017 Proyecto y Dirección de Obra Barrio Los Naranjos, Canning, Buenos Aires, Argentina