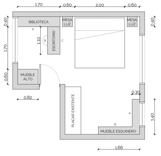
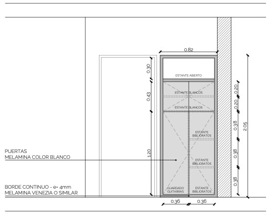
Vivienda Unifamiliar Equipamiento Interior Año 2022 Proyecto y Dirección de Obra CABA, Buenos Aires, Argentina