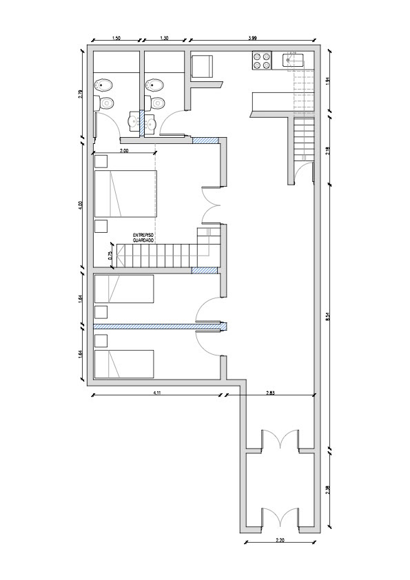
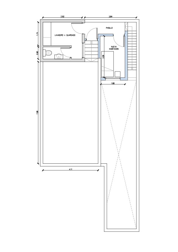
PROYECTO P4511
Vivienda Unifamiliar Reforma y Ampliación Año 2020 Proyecto CABA, Buenos Aires, Argentina
↑
Back to Top